Villa singola in vendita

Bolzano Vicentino, Via Molino
€ 355.000
7 locali 7 locali
274 Mq 274 Mq
3 bagni 3 bagni

Villa singola in vendita

Bolzano Vicentino, Via Molino

Descrizione annuncio

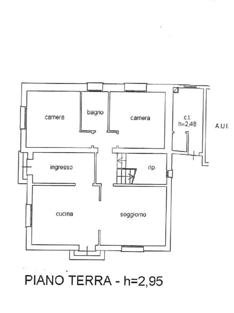
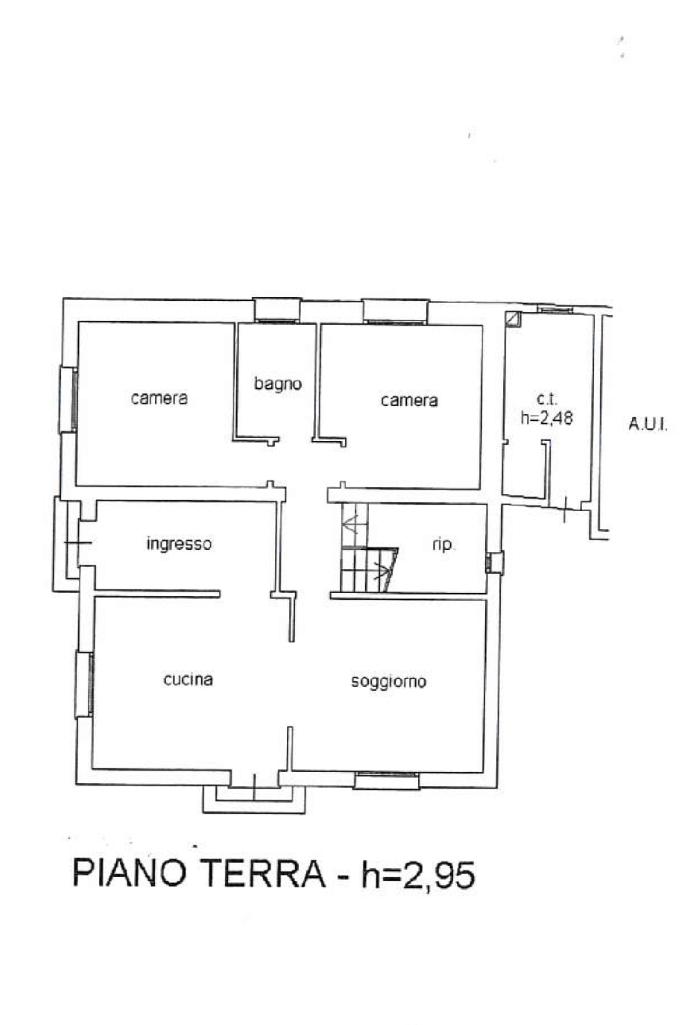
A Bolzano Vicentino proponiamo in vendita villetta singola libera, situata precisamente in via Molino, predisposta volendo per due abitazioni trilocali indipendenti e circondata da oltre 350 mq di aree scoperte esclusive. L’immobile è stato ristrutturato completo di impianti e serramenti nel 2015 e recentemente è stato integralmente ristrutturato nelle finiture, come da foto. Al piano terra si sviluppa un'area di circa 112 mq composta da ampio ingresso con guardaroba, luminoso soggiorno, cucina abitabile open space, bagno, due camere matrimoniali, ripostiglio e lavanderia, oltre a due autorimesse e due posti auto coperti. Tramite scala interna si accede al piano primo, già dotato di impianti autonomi e con possibilità di realizzare una scala esterna per rendere l’alloggio completamente indipendente, dove troviamo un ampio disimpegno, tre camere, due bagni (uno nella camera padronale), guardaroba e un terrazzino. L’abitazione è dotata di serramenti in legno massello con vetrocamera, pavimenti nuovi in gres porcellanato di grande formato, bagni completamente nuovi, caldaia a condensazione, riscaldamento con radiatori tubolari in acciaio e aria condizionata presente in più ambienti. La soluzione, si presenta ideale per coloro che desiderano avere spazi generosi, indipendenza, vicinanza ai principali collegamenti vari, oppure per due nuclei familiari, genitori e figli.

Per maggiori informazioni o per fissare un appuntamento, non esitare a contattarci.

Chiama ora il numero 0444.29.75.34 / 3755935667 per un appuntamento o scrivi a viha8

Tecnocasa Monticello Conte Otto
0444297534
viha8

Mostra tutto

Nelle vicinanze

Trasporto pubblico Trasporto pubblico
Capolinea Bolzano Vicentino
Capolinea Bolzano Vicentino
140 m
Trasporto pubblico
320 m
Scuole Scuole
Scuole Medie
640 m
Scuola Elementare
770 m
Scuole
2,3 Km
Farmacia Farmacia
Dispensa Farmaceutica
590 m
Farmacia Dal Zotto
2,3 Km
Supermercati Supermercati
Latteria Sociale Soc. Coop. a r.l.
430 m
Coop
1,6 Km
Alìper
2,9 Km
Negozi Negozi
Panificio Muraro
330 m
Magazzini Berton
1,3 Km
Bar Bar
Taste' Dolci Sapori Salati di Filippi Anna
670 m
Siroco Wine Bar
800 m
Bar Magazzini Berton
1,3 Km
Bar
1,4 Km
Bar Baracchino
1,7 Km
Ristoranti Ristoranti
Autogrill
1,3 Km
Pizzeria all'Orchidea
2,1 Km
Mostra tutto

Caratteristiche

Rif.:
61160705
Piano:
1 di 1 (Piano su più livelli)
Box:
2
Posti auto:
2
Terrazzi:
1
Camere da letto:
5
Mostra tutto
Prezzo Prezzo
€ 355.000
Rata mutuo Rata mutuo
€ 1.648 / mese
Spese annue Spese annue
€ 0
Proponi il tuo prezzoProponi il tuo prezzo
Immobile valutato con T·Valuta

Classe Energetica

D
D
D
D
D
D
D
D
D
EP invernale del fabbricato:
EP estiva del fabbricato:
Anno di costruzione:
1964
Riscaldamento:
Autonomo
Tipo impianto:
A radiatori
Tipo alimentazione:
Metano

Ti interessa visionare l'immobile?

Fissa un appuntamento  Fissa un appuntamento

Richiedi informazioni

Clicca su Leggi per aprire l'informativa
* Questi campi sono obbligatori

Calcola il tuo mutuo

Semplice e senza impegno
Anticipo

( % )
Mutuo

( % )

pochi semplici passi

inserisci i tuoi dati
Questionario completato
Grazie per aver richiesto un appuntamento senza impegno con un nostro Consulente del Credito e Assicurativo.

Hai inserito correttamente tutti i dati necessari e a breve riceverai una e-mail con un link da convalidare per inviare i tuoi dati.
Affiliato
Studio Cavazzale Srl
Via Leonardo da Vinci, 32 36010 Monticello Conte Otto (VI)

Il nostro staff


  • Claudio Mabilia
    Affiliato

  • Odett Zita Racz
    Affiliata

  • Alessandra Tescari
    Coordinatrice
Via Leonardo da Vinci, 32 36010 Monticello Conte Otto (VI)
Zona: Monticello Conte Otto-Bolzano Vicentino
Mostra su mappa
Affiliato
Studio Cavazzale Srl
Via Leonardo da Vinci, 32 36010 Monticello Conte Otto (VI)

2026 Tecnocasa Franchising S.p.A. - P. IVA 08365160152 - Via Monte Bianco 60/A 20089 Rozzano (MI). Ogni agenzia ha un proprio titolare ed è autonoma. Privacy policy | Policy utilizzo | Cookie policy