Villa singola in vendita

Monticello Conte Otto, Via Girolamo Selmo - Cavazzale
€ 550.000
6 locali 6 locali
380 Mq 380 Mq
3 bagni 3 bagni

Villa singola in vendita

Monticello Conte Otto, Via Girolamo Selmo - Cavazzale

Descrizione annuncio

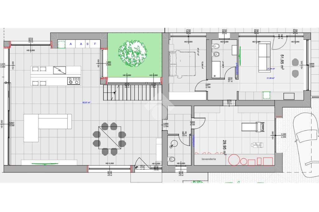
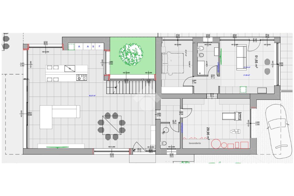
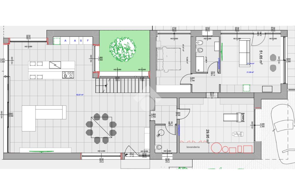
A Monticello Conte Otto, in tranquilla zona residenziale chiusa al traffico proponiamo in vendita casa singola disposta su due livelli fuori terra. Al piano terra, troviamo una luminosa zona giorno open space con cucina e soggiorno disposti in ben 83mq. A completare il piano, ci sono poi un primo bagno di servizio, una comoda lavanderia di 30mq ed uno spazio aggiuntivo di 71mq attualmente realizzato come mini appartamento indipendente che, a seconda delle esigenze, può essere mantenuto oppure trasformato in garage o in ulteriori stanze accessorie. Al piano primo invece si sviluppano 100mq composti da disimpegno, tre ampie camere matrimoniali di cui una con bagno privato e cabina armadio, oltre ad un ulteriore bagno finestrato per un totale di tre bagni, completano la proprietà due grandi terrazzi e uno spazioso giardino privato. L'immobile sarà realizzato in classe energetica A4 con tutte le caratteristiche tecniche previste per questa categoria, tra cui pannelli solari, pompa di calore, riscaldamento a pavimento, cappotto termico e molte altre dotazioni dettagliatamente descritte nel capitolato consultabile presso il nostro ufficio. Soluzione ideale per chi cerca comfort, indipendenza e spazi ampi in un contesto riservato e ben servito.

Si informa, che c'è la possibilità di acquistarla allo stato attuale di grezzo avanzato o completamente finita.

Non lasciarti sfuggire questa opportunità: contattaci per maggiori informazioni o per organizzare una visita! Ti aiuteremo a scoprire tutto il potenziale di questa splendida proprietà.

Chiama ora il numero 0444.29.75.34 / 3755935667 per un appuntamento o scrivi a viha8

Tecnocasa Monticello Conte Otto
0444297534
viha8

Mostra tutto

Nelle vicinanze

Trasporto pubblico Trasporto pubblico
Cavazzale
Cavazzale
1,4 Km
Bus 11
Bus 11
620 m
bus 11
bus 11
1,3 Km
Ricariche auto elettriche Ricariche auto elettriche
NaturaSì La Decima Bio Dinamico Dueville BeCharge
2,5 Km
Scuole Scuole
Istituto Comprensivo Don Bosco
640 m
Scuola dell'infanzia Il Nido Di Jacopo
810 m
Scuole
940 m
Scuola primaria San Giovanni Bosco
2,2 Km
Farmacia Farmacia
Farmacia Zentile Monica
910 m
Farmacia Dott.ssa De Rogatis
2,4 Km
Farmacia all'Angelo
2,4 Km
Supermercati Supermercati
Alìper
900 m
Crai
1,7 Km
Prix Quality
1,7 Km
Negozi Negozi
Bressan "el fornaro"
2,5 Km
Bar Bar
Cin Cin
970 m
Titanium Bar
2,1 Km
Birreria "La Cricca"
2,3 Km
Pasticceria Eros
2,4 Km
Ristoranti Ristoranti
Ai Camini
830 m
Trattoria Alla Vecchia Maniera
940 m
Bar Trattoria 008
990 m
Ai tre scalini
1,6 Km
Autogrill
2,3 Km
Mostra tutto

Caratteristiche

Rif.:
61119548
Piano:
Su più livelli di 2
Totale piani:
2
Box:
2
Posti auto:
2
Terrazzi:
1
Mostra tutto
Prezzo Prezzo
€ 550.000
Rata mutuo Rata mutuo
€ 2.592 / mese
Spese annue Spese annue
€ 0
Proponi il tuo prezzoProponi il tuo prezzo

Classe Energetica

A4
A4
A4
A4
A4
A4
A4
A4
A4
EP invernale del fabbricato:
EP estiva del fabbricato:
Anno di costruzione:
2025
Riscaldamento:
Autonomo
Tipo impianto:
A pavimento
Tipo alimentazione:
Pannelli

Ti interessa visionare l'immobile?

Fissa un appuntamento  Fissa un appuntamento

Richiedi informazioni

Clicca su Leggi per aprire l'informativa
* Questi campi sono obbligatori

Calcola il tuo mutuo

Semplice e senza impegno
Anticipo

( % )
Mutuo

( % )

pochi semplici passi

inserisci i tuoi dati
Questionario completato
Grazie per aver richiesto un appuntamento senza impegno con un nostro Consulente del Credito e Assicurativo.

Hai inserito correttamente tutti i dati necessari e a breve riceverai una e-mail con un link da convalidare per inviare i tuoi dati.
Affiliato
Studio Cavazzale Srl
Via Leonardo da Vinci, 32 36010 Monticello Conte Otto (VI)

Il nostro staff


  • Claudio Mabilia
    Affiliato

  • Odett Zita Racz
    Affiliata

  • Alessandra Tescari
    Coordinatrice
Via Leonardo da Vinci, 32 36010 Monticello Conte Otto (VI)
Zona: Monticello Conte Otto-Bolzano Vicentino
Mostra su mappa
Affiliato
Studio Cavazzale Srl
Via Leonardo da Vinci, 32 36010 Monticello Conte Otto (VI)

2026 Tecnocasa Franchising S.p.A. - P. IVA 08365160152 - Via Monte Bianco 60/A 20089 Rozzano (MI). Ogni agenzia ha un proprio titolare ed è autonoma. Privacy policy | Policy utilizzo | Cookie policy